
Italian designer Fabio Novembre has created stacked vases for renowned italian glass manufacturer venini. Made of world-famous murano glass, the containers are in the form of pharmaceutical drugs, with faint chemical compositions written on each. Each color combination represents a different hormone, testosterone, adrenaline, oxytocin, phenethylamine and estrogen. The placebo is meant to take the place of medication, with the philosophy that playful design has the same hormonal effects as ‘happy pills’.

“Usefulness is a concept that more and more fades away among the objects surrounding us. What we expect from these silent friends is to keep us company, make us laugh or in the best option, excite us. Hormonal chemistry influenced by material chemistry. Happy Pills are a placebo coming from Murano that, with shapes and colors, would substitute pharmacological solutions.”
Happy Pills Vases for Venini
29 FebPrivacy pop bed tent
23 Feb
it may not be as ideal as having your own space, the ‘privacy pop‘ tent would definitely come in handy in any shared bedroom, whether its with a sibling or in a dorm – situations where the luxury of privacy is not exactly possible. zip windows on each side of the tent offer ventilation and light when desired. the collapsible structure is designed to fit any twin or twin XL beds, and is easy to transport as a result of a folding design and compact carrying tote (*mattress and bed frame not included).



Source:
Robotic Steampunk Insects by Lindsey Bessanon
23 Feb
Lindsey Bessanon began her creative career as a jeweler in arizona, USA in 2003, casting insects in gold or silver. However, bessanon’s work soon morphed into one more sculptural in nature as she hoped to appreciate the coloring of each bug by adding metallic parts, resulting in a collection of robotic bugs.
Bessanon first acquires dried, dead insects from suppliers on ebay, special collectors or entomologist websites. When ready to begin work on a piece, the artist re-humidifies the specimens in order to properly shape them. Bessanon then repositions the legs and wings, fanning them in her intended arrangement. following the initial appendage setting, the artist pins the insect to a piece of styrofoam, allowing her To more easily add the cogs, gears, levers and steel mechanisms to the insect. After a period of two weeks, the intricate robotic bug sculpture is completed– the colors of the insect play off of the silver and gold of the gears, bringing together the two media preferred by the artist.








Source:
Plastic Bottle Carrier by Ka-Lai Chan
14 Feb
In certain cities, supermarkets are encouraging patrons to return their recyclable PET bottles by offering them a rebate. Tapping into this incentive and the hassle of having to carry a large quantity of empty bottles, netherlands-based designer ka-lai chan has come up with ‘bottled’, a carrier which makes this task a lot easier and more efficient.
The flat rubber-like disk has a ten openings whereby one can easily slip the nozzles of the empty bottles through the holes. The lightweight design has a built-in handle making it user-friendly to carry around, encouraging green behavior.

3D written portrait books
31 Jan
“Written portraits’ is a series of books which shows the different faces, literally, behind the selected autobiographies of anne frank, Vincent van gogh, louis van gaal and kader abdolah. the campaign, created by dutch agency van wanten etctera, was conceived by Markus Ravenhorst and maarten reynen as part of dutch book week under the theme of (auto) biography. the artwork was executed by souverein whereby, each book was created to stand as a realistic 3D portrait of its author. The structure of the original book’s pages were used for the text within the portraits in order to achieve the right configuration for each.



FACEBOOK 🙂
Foldable bike helmet by agency 360
31 Jan
‘Overade’ is a foldable unisex helmet, designed by patrick jouffret of french design studio agency 360 in collaboration with engineer philippe arrouart. The device provides as much protection as a standard bicycle helmet but folds up to a compact, easily transportable size when not in use. Small enough to slip into a purse or backpack, the design aims to address the low percentage of urban bicyclists who utilize helmets.
First prototyped in 2010, ‘overade’ is expected to enter commercial production within 2012




Goggles Umbrella
14 Jan
General Info:
dimensions: L 85 cm W 14 cm (approximate)
weight: 360g each umbrella package includes: two umbrellas (bright yellow & gray), protective bag, introduction card please note, there is a USD 24 STANDARD shipping and handling cost for this product to all destinations. A USD 35 EXPRESS mail service is available to asia, oceania, europe and north america.





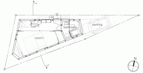
House in Horinouchi
10 Oct
Japanese practice Mizuishi Architect Atelier (kota mizuishi) has sent us images of ‘House in Horinouchi’, a two-storey private dwelling for a family of three in suginami, tokyo, japan. situated on a triangular site between a river and a road, the design is a direct response to the characters and qualities offered by the plot while remaining within the local permits and regulations of the area. 


































